高瀬町下勝間




物件種目 | 戸建て |
価 格 | 870万円 |
物件所在地 | 香川県三豊市高瀬町下勝間 |
土地面積
公簿 | 680 | ㎡ |
実測 | ㎡ |
地 目
公簿 | 宅地 | |
現況 | 宅地 |
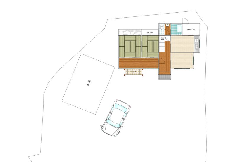
建物面積
1F | 113.74 | ㎡ |
2F | 27.18 | ㎡ |
交通状況
予讃線高瀬駅 徒歩14分
都市計画 | 非線引区域 |
建ぺい率 | 70% |
容積率 | 200% |
建物構造 | 木造瓦葺2階建 |
間取り | 6LDK |
築年数 | 49年 |
用途地域 | 無指定 |
地勢 | |
接道状況 | 一方 5.2m |
設備 | |